
NHÀ Ở XÃ HỘI HAPPY HOME PHỐ HIẾN
Hưng Yên đang trở mình với những bước phát triển vượt bậc. Nổi bật giữa bức tranh đó là dự án Happy Home Phố Hiến – một khu nhà ở xã hội quy mô lớn, được quy hoạch đồng bộ bởi chủ đầu tư uy tín hàng đầu Việt Nam, Tập đoàn Vingroup. Dự án không chỉ là một khu dân cư đơn thuần mà còn là biểu tượng của sự phát triển bền vững, hướng đến việc kiến tạo một cộng đồng an cư lạc nghiệp, tràn đầy hạnh phúc ngay tại trung tâm Thành phố Hưng Yên.
Với tổng diện tích lên đến 31,13 ha và tổng vốn đầu tư ấn tượng 6.000 tỷ đồng, Dự án Happy Home Phố Hiến hứa hẹn mang đến một môi trường sống đẳng cấp, tiện nghi cho hàng ngàn cư dân. Dự án sở hữu đa dạng loại hình nhà ở, từ các tòa chung cư hiện đại đến những căn nhà ở xã hội bán liền kề, đáp ứng nhu cầu đa dạng của người dân, đặc biệt là những gia đình trẻ và cán bộ công nhân viên mong muốn sở hữu tổ ấm chất lượng với mức giá phù hợp.

TỔNG QUAN HAPPY HOME PHỐ HIẾN
Dự án thuộc chuỗi phát triển nhà ở xã hội mang thương hiệu Happy Home – định hướng xây dựng khu đô thị hiện đại, đầy đủ tiện ích nhưng vẫn đảm bảo mức giá hợp lý.
Tổng quan dự án
- Tên dự án: Happy Home Phố Hiến
- Loại hình: Nhà ở xã hội (NOXH) kết hợp nhà liền kề
- Vị trí: Khu đô thị Đại học Phố Hiến, TP. Hưng Yên
- Quy mô: Khoảng 30+ ha
- Số lượng căn hộ: ~4.000 – 4.500 căn
- Chiều cao: 9 tầng/tòa
- Diện tích căn hộ: 45m² – 70m²
- Thời gian triển khai: 2026 – 2028
- Thời gian bàn giao 2028
- Sổ đỏ lâu dài
- Trang Website : happyhomephohien.com.vn
VỊ TRÍ DỰ ÁN HAPPY HOME PHỐ HIẾN
Vị trí Happy Home Phố Hiến Kim Cương – Kết Nối Giao Thương Thuận Tiện Của Happy Home Phố Hiến.
Tọa lạc tại xã Trung Nghĩa, phường Phố Hiến, Thành phố Hưng Yên, dự án thụ hưởng một vị trí đắc địa, ngay cửa ngõ thành phố và sở hữu khả năng kết nối giao thông vượt trội. Từ đây, cư dân có thể dễ dàng tiếp cận các tuyến đường huyết mạch, di chuyển nhanh chóng đến các khu công nghiệp lớn, trung tâm hành chính, và các tỉnh thành lân cận như Hà Nội, Hải Dương, Thái Bình.


Vị Trí Happy Home Phố Hiến
Dự án Happy Home tọa lạc tại khu vực Phố Hiến – trung tâm phát triển mới của TP. Hưng Yên, sở hữu khả năng kết nối thuận tiện:
Kết nối vùng
- Nhanh chóng di chuyển tới Hà Nội qua QL38, QL5
- Gần các khu công nghiệp lớn: Thăng Long II, Phố Nối
- Liền kề khu đại học Phố Hiến
Lợi thế vị trí
- Nằm trong vùng phát triển đô thị vệ tinh của Hà Nội
- Hạ tầng giao thông ngày càng hoàn thiện
- Nhu cầu nhà ở thực cao
Hệ thống tiện ích
TIỆN ÍCH HAPPY HOME PHỐ HIẾN
Cuộc sống tại Chung cư Happy Home Phố Hiến không chỉ dừng lại ở một ngôi nhà, mà còn là trải nghiệm một hệ sinh thái tiện ích đẳng cấp, được quy hoạch toàn diện để phục vụ mọi nhu cầu của cư dân ở mọi lứa tuổi. Với sự đầu tư mạnh mẽ từ Tập đoàn Vingroup, dự án mang đến một môi trường sống khép kín, tiện lợi và đầy đủ. Từ giáo dục, y tế đến giải trí, mua sắm, mọi thứ đều nằm trong tầm tay, tạo nên một cộng đồng văn minh và hiện đại.
Hệ thống tiện ích nội khu được thiết kế đồng bộ, bao gồm:
- Hệ thống Giáo dục hoàn chỉnh: Gồm 01 trường mầm non (3 tầng, quy mô 532 cháu), 01 trường tiểu học (5 tầng, quy mô 692 học sinh), và 01 trường trung học cơ sở (5 tầng, quy mô 586 học sinh). Điều này đảm bảo con em cư dân có môi trường học tập chất lượng ngay trong khuôn viên dự án.
- Y tế và Văn hóa cộng đồng: 01 công trình y tế hiện đại (tối đa 4 tầng) và 01 nhà văn hóa (tối đa 4 tầng), phục vụ nhu cầu chăm sóc sức khỏe và giao lưu cộng đồng.
- Thương mại và Dịch vụ: 01 chợ dân sinh (tối đa 4 tầng) và các cửa hàng tiện lợi, siêu thị ngay trong khu đô thị, đáp ứng mọi nhu cầu mua sắm hàng ngày. Các căn shophouse liền kề cũng tạo nên không gian kinh doanh sầm uất.
- Không gian xanh và Thể thao: Công viên rộng lớn (23.268,5m2), 03 khu đất thể dục thể thao (sân bóng đá, đường chạy bộ, phòng Gym, phòng Yoga), mang đến không gian lý tưởng cho các hoạt động vui chơi, giải trí và rèn luyện sức khỏe.

Tiện ích Happy Home Phố Hiến


Happy Home Phố Hiến – Khởi Nguồn Cuộc Sống Mới Đầy Hạnh Phúc Tại Hưng Yên
Dự án Happy Home Phố Hiến không chỉ là một dự án bất động sản thông thường mà còn là một biểu tượng của sự phát triển và mong muốn kiến tạo giá trị bền vững cho cộng đồng. Với sự kết hợp hoàn hảo giữa vị trí đắc địa, quy hoạch thông minh, tiện ích đa dạng và sự đảm bảo từ chủ đầu tư uy tín Vingroup, dự án này xứng đáng trở thành lựa chọn hàng đầu cho những ai đang tìm kiếm một tổ ấm lý tưởng tại Thành phố Hưng Yên.
Dù là các gia đình trẻ mong muốn một không gian sống hiện đại, tiện nghi hay các nhà đầu tư đang tìm kiếm cơ hội với các căn shophouse, liền kề có tiềm năng sinh lời cao, Happy Home Phố Hiến đều mang đến những giá trị vượt trội. Dự án không chỉ cung cấp những căn nhà mà còn xây dựng cả một cộng đồng văn minh, năng động, nơi mỗi cư dân có thể tận hưởng cuộc sống trọn vẹn và hạnh phúc.

Nơi đáng sống Nhà ở xã hội Happy Home Phố Hiến
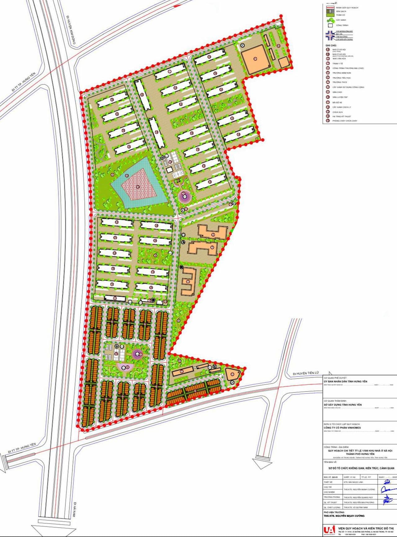
MẶT BẰNG DỰ ÁN HAPPY HOME PHỐ HIẾN
Mặt bằng dự án nhà ở xã hội Happy Home Phố Hiến được quy hoạch với quy mô 31,5ha, gồm 2 phân khu chính: Khu chung cư, Khu nhà liền kề và khu tiện ích (trường học, bệnh viện, khu vui chơi trẻ em).

Mặt bằng Nhà ở xã hội Happy Home Phố Hiến
Dự án gồm 25 tòa chung cư, 303 căn nhà ở xã hội bán liền kề cùng hệ thống các tiện ích nội khu bao gồm hệ thống cây xanh, sân thể thao, khu vui chơi trẻ em, và các công trình dịch vụ như trường học và bệnh viện.
Mặt bằng dự án nhà ở xã hội Happy Home Phố Hiến được thiết kế dựa trên tiêu chí tối ưu hóa không gian sống, bố trí hài hòa cảnh quan và không gian sống khu nhà cao tầng và liền kề.

Mặt bằng dự án nhà ở xã hội Happy Home Phố hiến
THIẾT KẾ CHI TIẾT CĂN HỘ HAPPY HOME
Các căn hộ tại dự án có thiết kế thông minh, diện tích linh hoạt từ 45m² đến 70m², phù hợp với tiêu chuẩn nhà ở xã hội nhưng vẫn đảm bảo chất lượng căn hộ thương mại:
Căn hộ 1 phòng ngủ (45m² – 50m²): Phù hợp với người độc thân hoặc cặp vợ chồng trẻ. Ưu điểm là chi phí hợp lý, dễ dàng bố trí nội thất, tối ưu công năng.
Căn hộ 2 phòng ngủ (55m² – 70m²): Là lựa chọn lý tưởng cho các gia đình có 1-2 con. Thiết kế vuông vắn, các phòng ngủ đều có cửa sổ lớn, logia rộng rãi giúp phơi đồ và trồng cây xanh, mang lại không gian sống thoáng đãng, dễ chịu.

Chung cư Happy Home Phố Hiến
Nhà liền kề/Shophouse Happy Home Phố Hiến
Khu vực Nhà liền kề Shophouse Happy Home được bố trí tại các mặt tiền trục đường chính của dự án, có thiết kế hiện đại, đa chức năng:
Ưu điểm: Tầng 1 và 2 được thiết kế để kinh doanh hoặc cho thuê mặt bằng, các tầng trên là không gian sinh hoạt riêng tư. Điều này tạo ra nguồn thu nhập ổn định ngay tại nơi ở cho gia chủ.
Thiết kế: Mặt tiền rộng, kiến trúc hiện đại, đồng bộ, tạo nên một khu phố thương mại sầm uất, góp phần hoàn thiện tiện ích nội khu.

Liền kề Happy Home Phố Hiến
ĐIỀU KIỆN ĐỂ MUA NOXH HAPPY HOME PHỐ HIẾN
Đối tượng đăng ký Mua/Thuê NOXH :
* Hộ khẩu Hưng Yên:
1. Chưa mua NOXH bao giờ (mỗi hộ gia đình chỉ được mua 1 lần).
2. Điều kiện về cư trú: Đang sinh sống và làm việc tại địa phương đang triển khai dự án (Thể hiện bằng việc có hộ khẩu Hưng Yên hoặc thường trú, tạm trú)
3. Điều kiện về thu nhập: Thuộc đối tượng không phải đóng thuế thu nhập cá nhân thường xuyên. (Thể hiện bằng HĐLĐ, xác nhận bằng mẫu 03)
4. Điều kiện về nhà ở: Chưa có nhà ở hoặc khó khăn về nhà ở, hoặc nhà ở chật chội (nhà ở chật: diện tích tối thiểu 10m2/người ) (Xác nhận bằng mẫu 03).
* Hộ khẩu tỉnh:
1. Điệu kiện cư trú : có xác nhận tạm trú tại khu vực có triển khai dự án NOXH.
2. Có hợp đồng lao động trên 1 năm tại các doanh nghiệp trên địa bàn Hưng Yên.
3. Giấy tờ xác nhận đóng bảo hiểm xã hội.
HƯỚNG DẪN HỒ SƠ MUA NOXH HAPPY HOME PHỐ HIẾN
1. Đơn mua nhà ở xã hội (Mẫu số 01 Phụ lục II Nghị định 100/2024/NĐ-CP).
2. Giấy tờ chứng minh thuộc đối tượng được mua nhà ở xã hội:
+ Đối tượng (1) thì giấy tờ chứng minh đối tượng được hưởng chính sách hỗ trợ về nhà ở xã hội là bản sao có chứng thực giấy tờ chứng minh người có công với cách mạng hoặc bản sao có chứng thực giấy chứng nhận thân nhân liệt sỹ theo quy định của Pháp lệnh Ưu đãi người có công với cách mạng.
+ Đối tượng (2), (3), (4) thì giấy tờ chứng minh đối tượng được hưởng chính sách hỗ trợ về nhà ở xã hội là bản sao có chứng thực giấy chứng nhận hộ gia đình nghèo, cận nghèo theo quy định.
+ Các đối tượng (5), (6), (8), (9), (10), (11) thực hiện theo Mẫu số 01 tại Phụ lục I ban hành kèm theo Thông tư 05/2024/TT-BXD.
+ Mẫu giấy tờ chứng minh đối tượng (7) thực hiện theo hướng dẫn của Bộ trưởng Bộ Quốc phòng, Bộ trưởng Bộ Công an.
3. Mẫu giấy tờ chứng minh điều kiện về nhà ở
+ Mẫu số 02 (đối với trường hợp chưa có nhà ở) Phụ lục I ban hành kèm theo Thông tư 05/2024/TT-BXD.
+ Mẫu số 03 (đối với trường hợp có nhà ở) Phụ lục I ban hành kèm theo Thông tư 05/2024/TT-BXD.
Trường hợp người đứng đơn đã kết hôn thì vợ hoặc chồng của người đó cũng phải kê khai mẫu giấy tờ chứng minh điều kiện về nhà ở theo Mẫu số 02 tại Phụ lục I ban hành kèm theo Thông tư 05/2024/TT-BXD Tải về.
4. Mẫu giấy tờ chứng minh điều kiện về thu nhập
+ Đối tượng (5), (6), (7), (8) là Mẫu số 04 tại Phụ lục I ban hành đính kèm theo Thông tư 05/2024/TT-BXD.
+ Đối tượng (5) Nhưng không có đồng lao động là Mẫu số 05 tại Phụ lục I ban hành đính kèm theo Thông tư 05/2024/TT-BXD.
Trường hợp người đứng đơn đăng ký mua, thuê mua nhà ở xã hội đã kết hôn thì vợ hoặc chồng của người đó cũng phải kê khai mẫu giấy tờ chứng minh điều kiện về thu nhập theo Mẫu số 04 hoặc Mẫu số 05 tại Phụ lục I ban hành đính kèm theo Thông tư 05/2024/TT-BXD.
Lưu ý: Các giấy tờ kèm theo khách hàng phụ bản sao chứng thực (giấy xác nhận thường trú, tạm trú, chứng minh thư, căn chân công dân…). Người tin tưởng hồ sơ cam chịu về tính trung thực và chính xác khi kê khai hồ sơ.
Hồ sơ để mua nhà ở xã hội Happy Home Phố Hiến gồm:
1. Đơn đăng ký mua NOXH (Mẫu 01).
2. Xác nhận tình trạng nhà đất (xin tại văn phòng đăng ký đất đai nơi có dự án) (Mẫu 02).
3. Xác nhận nơi cư trú Mẫu CT07.
4. Xác nhận Thu nhập do Công ty xác nhận nếu đi làm thành phố (Mẫu 04) hoặc do Ủy ban Nhân dân xác nhận nếu là Lao động tự động ( 05)
5. Giấy tờ cá nhân: CCCD (nếu có gia đình thì của cả gia đình), Đăng ký kết nối (nếu có gia đình) hoặc xác nhận tình trạng nhân (độc thân), giấy khai sinh (nếu có con)
6. Nhận bệnh nếu có tham gia Bảo hiểm (dự án dự án yêu cầu) có dự kiến dự án không yêu cầu đóng Bảo hiểm xã hội
7. Xác nhận đối tượng mua NOXH ( do thành phố ký đóng dấu hoặc UBND phường, xã₫
8. Bảng lương có xác nhận của thành phố doanh nghiệp.
9. Và một số giấy tờ bên ngoài tiền thù lao.
NỘI THẤT BÀN GIAO HAPPY HOME PHỐ HIẾN
- Thang máy tốc độ cao, phân zone thông minh. Truy cập không cần chìa khoá (keyless residential entry).
- Kính chạm trần sàn cao cấp Solar / Low-E hiện đại.
- Trang thiết bị bếp cao cấp: Electrolux, Bosch.
- Trang thiết bị vệ sinh cao cấp: Grohe, Moen, Innoci, Axent, Toto.
- Hệ thống điều hoà không khí: Toshiba/Mitsubishi/Panasonic/Hitachi.
- Hệ thống công tắc cảm biến thông minh.
- Trang thiết bị tiện nghi tiêu chuẩn khách sạn: Tủ âm gương, bồn cầu điện thông minh.
- Cửa nhà khoá điện tử thông minh từ Yale, Philips.




